網走市呼人63番15土地

200万円

北海道網走市字呼人63-15

石北本線「呼人」駅徒歩35分

価格
200万円
坪単価
0.5万円(400.20坪)
所在地
北海道網走市字呼人63-15
交通

石北本線呼人」駅 徒歩35分

土地面積(坪数)
1323.00㎡(400.20坪)
建ぺい率 / 容積率
20% / 60%

セールスポイント

「網走市呼人63番15土地」:網走市立呼人小学校エリア、土地面積400坪

ポイント

前道6m以上 接道幅15m以上 土地300坪以上

担当者のコメント

竹中 朋美

「網走市呼人63番15土地」:網走市立呼人小学校エリア、土地面積400坪

基本情報

販売区画数
-
総区画数
-
土地面積(坪数)
1323.00㎡(400.20坪)
坪単価
0.5万円
私道負担面積
割合
-
セットバック
建ぺい率 /
容積率
20% / 60%
高圧線下面積
-
傾斜地部分面積
-
路地状敷地
-
地目
雑種地
地勢
傾斜地
造成工事
完了予定
-
土地権利
所有権
建築条件
-
都市計画
都市計画区域外
用途地域
無指定
接道状況
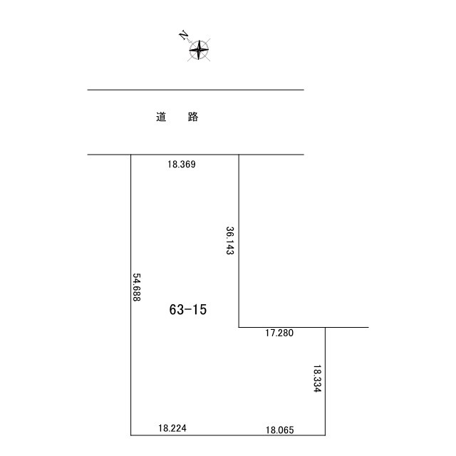
-(北東 10.0m 間口 18.3m)
国土法届出要否
不要
最適用途
-
その他
法令上の制限
-
取引態様
専任媒介
現況
更地
引渡条件
-
引渡時期
相談
開発許可番号
-
取引条件の
有効期限
2026年04月24日

設備条件

設備条件
設備(その他)
    -

その他

物件番号
94059697
管理コード
-
情報更新日
2026年04月10日
次回更新予定日
2026年04月24日
取扱会社
  • アルクス不動産
  • 北海道網走市南二条東1丁目9番地の2 
  • TEL:0152-67-5175
  • 北海道知事オホ (1) 第443号
  • 公益社団法人 北海道宅地建物取引業協会
備考
現況引渡し 契約不適合免責

支払いシミュレーション

月々の支払額

※実際の金額と異なる場合があります。

購入希望物件価格
万円
頭金
万円
金利
%
返済額(ボーナス1回分)
万円
返済期間

※ボーナスは自動で年2回分で計算されます。

近隣の物件

  1. 網走市字潮見143番20土地

    網走市字潮見

    - (261.74㎡)

    370万円

  2. 網走市字潮見282番24(仮地番)土地

    網走市字潮見

    - (485.00㎡)

    650万円

  3. 網走市呼人63番13土地

    網走市字呼人

    - (1180.00㎡)

    200万円

  4. 網走市藻琴土地

    網走市字藻琴

    - (647.30㎡)

    300万円

よく見られている物件

  1. 網走市字潮見282番24(仮地番)土地

    網走市字潮見

    - (485.00㎡)

    650万円

  2. 網走市鱒浦4丁目 土地

    網走市鱒浦4丁目

    - (227.00㎡)

    270万円

  3. 網走市字藻琴130番ほか土地

    網走市字藻琴

    - (387.59㎡)

    120万円

  4. 【広い土地をお探しの方必見!約238坪】網走市台町1丁目85土地

    網走市台町1丁目

    - (785.14㎡)

    980万円

網走市呼人63番15土地

網走市呼人63番15土地

200万円

-(1323.00㎡)

お気軽にお問い合わせください

無料お問い合わせ

アルクス不動産

0152-67-5175

10:00~17:00

(休:不定休)